Atendimento ao cliente
(17) 2139-4150
Atacadão Naranjo
Reforma completa do galpão, incluindo troca de cobertura, reforço estrutural e adequações internas.
 
 
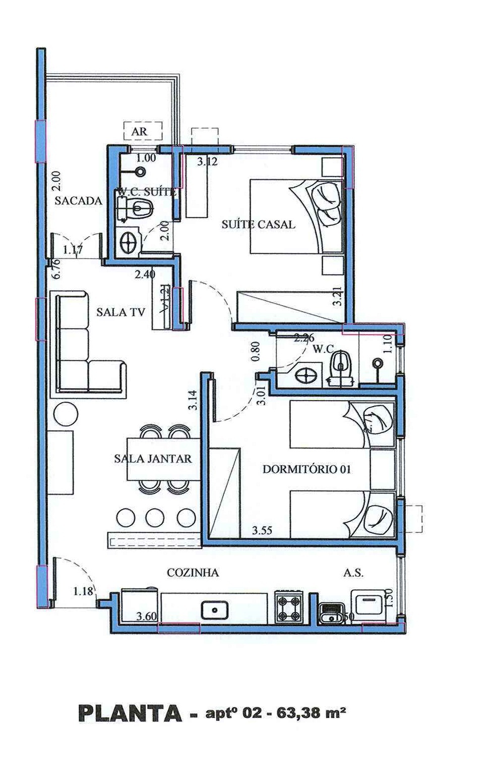
Já estão prontos os projetos do Edifício Santa Paulina I03/05/2012
 

Uma arquitetura moderna, unindo simplicidade, praticidade e conforto !
Esta é a definição para a obra de Germana Zanetti e Leandro Madi.
Vejam as plantas dos apartamentos.... Em breve maiores novidades !

 
Outras Fotos
Planta Apto 1
Planta Apto 2
Planta Apto 3
Planta Apto 4
 
» ver outras noticias
 
SOBRE NÓS | SEGMENTOS DE ATUAÇÃO | OBRAS REALIZADAS | CLIENTES | NOTÍCIAS | FALE CONOSCO

Criação de Sites - DotSites.
 

2011 © Santa Paulina Engenharia
R. Dr. Hamilton Cézar Zoccal, 135
Parque Quinta das Paineiras
S. J. Rio Preto | SP
engenharia@santapaulinaengenharia.com.br
(17) 2139-4150

goodNike Free +3 Skosale online